1. Home
  2. Search Listings
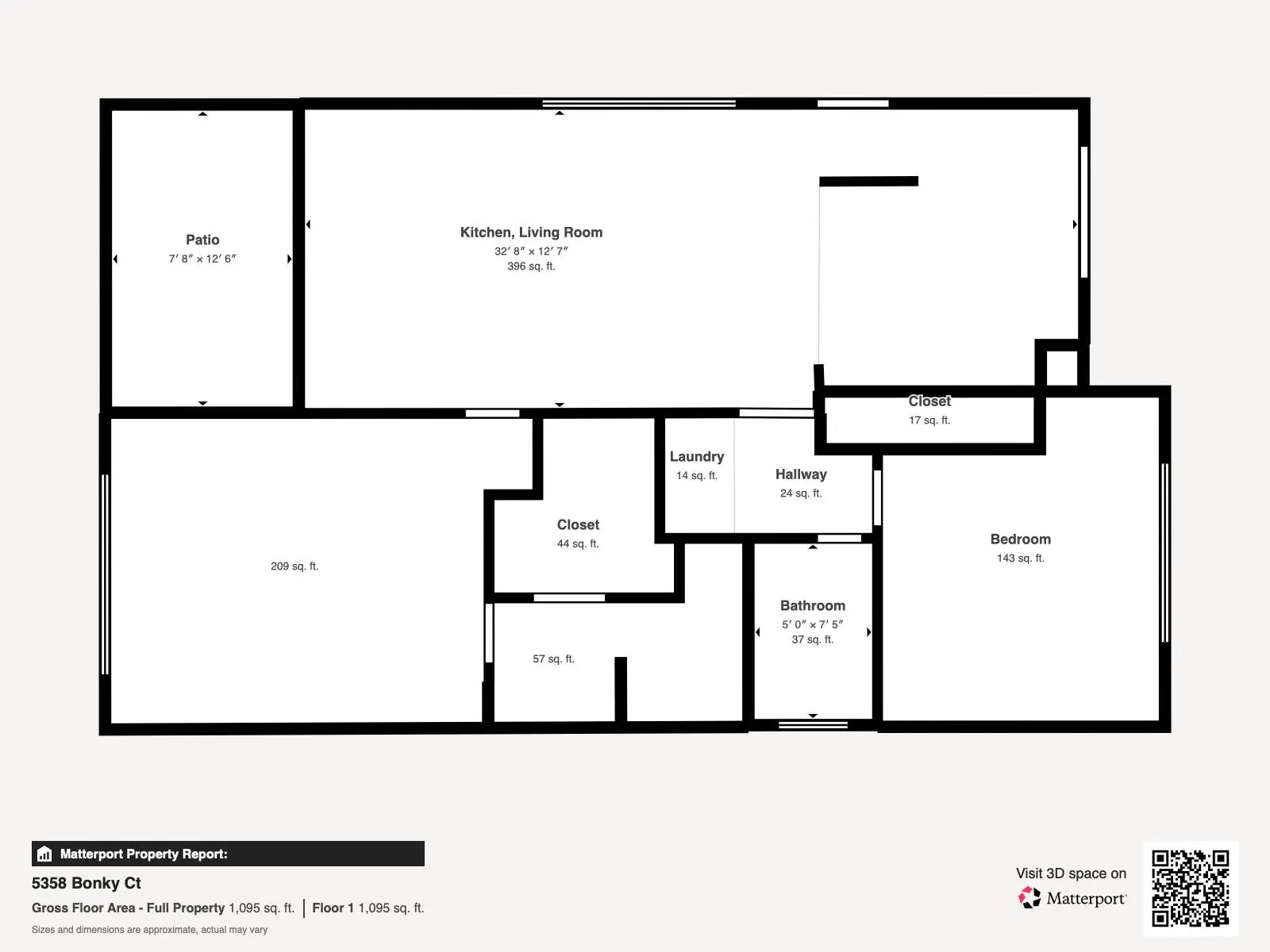
  3. 5358 Bonky Court West Palm Beach, FL - 33415
  • MLS® #: B26013680
  • 5358 Bonky Court
  • West Palm Beach, FL 33415
  • $330,000
  • 2 Beds, 2 Bath, 1,096 SqFt
  • Residential

Welcome to this updated villa-style corner residence offers 2 bedrooms and 2 full bathrooms, featuring volume ceilings and an open floor plan with tile flooring throughout the main living areas and wood-look laminate in the bedrooms. Ideally situated at the end of a quiet cul-de-sac, the property offers ample parking and additional green space. The home includes two private, fenced patios, accessible from both the living and dining rooms, providing ideal spaces for outdoor relaxation and entertaining. Recent updates include a new stove, refrigerator, dishwasher, A/C unit, fencing, fresh interior and exterior paint, and complete hurricane shutters for added peace of mind. Residents of Garden Hills enjoy access to a clubhouse, community pool, tennis courts, and scenic biking and jogging trails, all conveniently located near shopping, dining, and schools, with easy access to I-95 and the airport. HOA fees include common area maintenance, lawn care, and pool service.

View Virtual Tour

Essential Information

  • MLS® #B26013680
  • Price$330,000
  • Bedrooms2
  • Bathrooms2.00
  • Full Baths2
  • Square Footage1,096
  • Year Built1984
  • TypeResidential
  • Sub-TypeVilla
  • StyleTraditional
  • StatusNew

Community Information

  • Address5358 Bonky Court
  • Area5510
  • SubdivisionGARDEN HILLS UNIT THREE
  • CityWest Palm Beach
  • CountyPalm Beach
  • StateFL
  • Zip Code33415

Amenities

  • ParkingAsphalt, Assigned, Guest

Amenities

Clubhouse, Jogging Path, Pool, Tennis Court(s), Community Room, Maintained Community, Street Lights, Maintenance, Recreation Facilities

Utilities

Cable Connected, Electricity Connected, Sewer Connected, Water Connected

Interior

  • HeatingCentral, Electric
  • # of Stories1
  • StoriesOne

Interior Features

High Ceilings, Vaulted Ceiling(s)

Appliances

Electric Water Heater, Dryer, Dishwasher, Electric Range, Microwave, Refrigerator, Water Heater, Washer

Cooling

Central Air, Ceiling Fan(s), Electric

Exterior

  • Lot DescriptionCul-De-Sac, Corner Lot
  • WindowsSliding, Shutters
  • RoofShingle
  • ConstructionBlock

School Information

  • ElementaryPine Jog
  • HighJohn I. Leonard

Middle

Palm Springs Community (Palm Beach)

Additional Information

  • Date ListedApril 10th, 2026
  • Days on Website12
  • ZoningRM
  • HOA Fees150
  • HOA Fees Freq.Monthly
  • Office: Redfin Corporation

Property Location

Please provide a valid email address.

5358 Bonky Court on www.webmail.jupiterabacoahomes.us

Offered at the current list price of $330,000, this home for sale at 5358 Bonky Court features 2 bedrooms and 2 bathrooms. This real estate listing is located in GARDEN HILLS UNIT THREE of West Palm Beach, FL 33415 and is approximately 1,096 square feet. 5358 Bonky Court is listed under the MLS ID of B26013680 and has been available through www.webmail.jupiterabacoahomes.us for the West Palm Beach real estate market for 12 days.

Facts About West Palm Beach, FL

West Palm Beach is home to the Bel Air Historic District. It was built in the 20s and 30s and boast some of Palm Beach's most beautiful and historic architecture.

Looking for great shopping and entertainment in West Palm Beach Florida? Look no further than Clematis Street. It is home to some of West Palm Beach's most vibrant and entertaining shops, restaurants and nightclubs.

To enjoy a taste of the local ethnic cuisine that has inspired West Palm Beach since its inception visit Havana. This Cuban-style restaurant features specialties like Cuban coffee, fried churros , exotic fruits and slow roasted Spanish chicken.

Similar Listings to 5358 Bonky Court

Photo of Listing #R11158896
  • MLS® #: R11158896
  • 1040 Summit Place Circle #b
  • West Palm Beach, FL 33415
  • $349,900
  • 3 Bed, 2 Bath, 1,332 SqFt
  • Residential
Add as Favorite
Photo of Listing #B26011561
  • MLS® #: B26011561
  • 5177 Cannon Way
  • West Palm Beach, FL 33415
  • $345,000
  • 2 Bed, 2 Bath, 860 SqFt
  • Residential
Add as Favorite
Photo of Listing #B26014126
  • MLS® #: B26014126
  • 1858 Keenland Circle
  • West Palm Beach, FL 33415
  • $325,000
  • 3 Bed, 2 Bath, 1,223 SqFt
  • Residential
Add as Favorite
Photo of Listing #B26016879
  • MLS® #: B26016879
  • 1875 Abbey Road
  • West Palm Beach, FL 33415
  • $309,900
  • 2 Bed, 2 Bath, 1,073 SqFt
  • Residential
Add as Favorite

All listings featuring the BMLS logo are provided by Beaches MLS Inc. Copyright 2026 Beaches MLS. This information is not verified for authenticity or accuracy and is not guaranteed.
© 2026 Beaches Multiple Listing Service, Inc. All rights reserved.

Listing information last updated on April 22nd, 2026 at 6:46am CDT.