1. Home
  2. Search Listings
  3. MLS® #F10500062 Fort Lauderdale, FL - 33308
  • MLS® #: F10500062
  • (Undisclosed Address)
  • Fort Lauderdale, FL 33308
  • $790,000
  • 3 Beds, 3 Bath, 1,568 SqFt
  • Residential

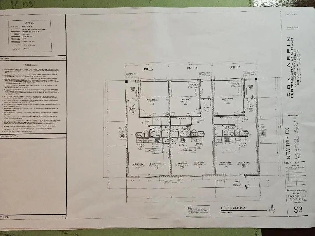
DEVELOPER OPPORTUNITYUsing 3 existing Walls' & Slab for the new construction of a (3) Three Unit (2) two story, 1760 square feet, gross plans, negotiable, Townhomes with attached Garages.WILLING TO SELL PROPERTY TO DEVELOPERThe plans that we have on the site is a sample of what can be done on the property.You would be pulling the permit for the City of Fort Lauderdale.I am a Structural Engineer, that can do all the plans for the City, plus the demo plans DEVELOPER OPPORTUNITYUsing 3 existing Walls' & Slab for the new construction of a (3) Three Unit (2) two story, 1760 square feet, gross plans, negotiable, Townhomes with attached Garages.WILLING TO SELL PROPERTY TO DEVELOPERThe plans that we have on the site is a sample of what can be done on the property.You would be pulling the permit for the City of Fort Lauderdale.I am a Structural Engineer, that can do all the plans for the City, plus the demo plans

Essential Information

  • MLS® #F10500062
  • Price$790,000
  • Bedrooms3
  • Bathrooms3.00
  • Full Baths2
  • Half Baths1
  • Square Footage1,568
  • Year Built1958
  • TypeResidential
  • Sub-TypeTownhouse
  • StyleRanch, Split Level
  • StatusActive

Community Information

  • AddressN/A
  • Subdivisionnone
  • CityFort Lauderdale
  • StateFL
  • Zip Code33308

Amenities

  • AmenitiesNone
  • UtilitiesCable Available
  • # of Garages1
  • ViewOther

Parking

Garage, Attached Garage, Attached

Interior

  • HeatingNatural Gas
  • FireplaceYes
  • # of Stories2

Appliances

Gas Water Heater, Disposal, Dishwasher, Gas Range, Oven, Water Heater, Water Purifier, Water Softener

Cooling

Central Air, Ceiling Fan(s), Electric, Gas, Reverse Cycle

Exterior

  • Exterior FeaturesBalcony
  • ConstructionCBS

Additional Information

  • Date ListedApril 24th, 2025
  • Days on Website321
  • RE / Bank OwnedYes
  • Office: A American Capital Leasing Inc
Please provide a valid email address.

N/A on www.webmail.jupiterabacoahomes.us

Offered at the current list price of $790,000, this home for sale at N/A features 3 bedrooms and 3 bathrooms. This real estate listing is located in none of Fort Lauderdale, FL 33308 and is approximately 1,568 square feet. N/A is listed under the MLS ID of F10500062 and has been available through www.webmail.jupiterabacoahomes.us for the Fort Lauderdale real estate market for 321 days.

Similar Listings to N/A

Photo of Listing #R11068999
  • MLS® #: R11068999
  • 3020 Ne 49th Street #2
  • Fort Lauderdale, FL 33308
  • $885,000
  • 2 Bed, 3 Bath, 1,625 SqFt
  • Residential
Add as Favorite
Photo of Listing #F10541283
  • MLS® #: F10541283
  • 1604 Sw 4th Avenue #n/a
  • Fort Lauderdale, FL 33315
  • $724,500
  • 3 Bed, 3 Bath, 1,745 SqFt
  • Residential
Add as Favorite
Photo of Listing #F10533672
  • MLS® #: F10533672
  • 822 Ne 19th Avenue #822
  • Fort Lauderdale, FL 33304
  • $749,000
  • 3 Bed, 3 Bath, 1,914 SqFt
  • Residential
Add as Favorite
Photo of Listing #F10495571
  • MLS® #: F10495571
  • 816 Ne 7th Street #c
  • Fort Lauderdale, FL 33004
  • $869,000
  • 3 Bed, 4 Bath, 2,050 SqFt
  • Residential
Add as Favorite

All listings featuring the BMLS logo are provided by Beaches MLS Inc. Copyright 2026 Beaches MLS. This information is not verified for authenticity or accuracy and is not guaranteed.
© 2026 Beaches Multiple Listing Service, Inc. All rights reserved.

Listing information last updated on March 11th, 2026 at 10:01pm CDT.