1. Home
  2. Search Listings
  3. 500 Hendricks Isle #2s Fort Lauderdale, FL - 33301
  • MLS® #: F10525757
  • 500 Hendricks Isle #2s
  • Fort Lauderdale, FL 33301
  • $2,999,900
  • 3 Beds, 4 Bath, 2,794 SqFt
  • Residential

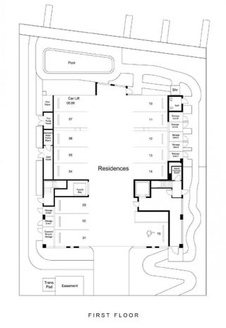
New “Saint-Tropez South“ at Lumiere residences, a boutique collection of only 7 waterfront units on prestigious Las Olas Isles as an estate alternative lifestyle. Sunrise to Sunset views with a flow-through floorplan, window walls of glass set the stage for this residence with wraparound balconies to enjoy. Rare assigned boat dock for up to 50 +/-feet included. Amenities include a 2 garage parking spaces, resort-style pool, fitness center and roof top sky deck. . Conveniently located minutes to fashionable Las Olas Village fine dining/shopping and sandy beaches. Shown by appt only. Please note: all pictures are artist renderings. DISCLAIMER: Information published or otherwise provided by the listing company and its representatives including but not limited to prices, measurements, square footages, lot sizes, calculations, statistics, and videos are deemed reliable but are not guaranteed and are subject to errors, omissions or changes without notice. All such information should be independently verified by any prospective purchaser or seller. Parties should perform their own due diligence to verify such information prior to a sale or listing. Listing company expressly disclaims any warranty or representation regarding such information. Prices published are either list price, sold price, and/or last asking price. The listing company participates in the Multiple Listing Service and IDX. The properties published as listed and sold are not necessarily exclusive to listing company and may be listed or have sold with other members of the Multiple Listing Service. Transactions where listing company represented both buyers and sellers are calculated as two sales. “No payments made until title passes” Some affiliations may not be applicable to certain geographic areas. If your property is currently listed with another broker, please disregard any solicitation for services. Information published or otherwise provided by seller, listing company or its representatives is deemed reliable but are not guaranteed and subject to errors, omissions, or changes without notice. Copyright 2026 by the listing company. All Rights Reserved.

Essential Information

  • MLS® #F10525757
  • Price$2,999,900
  • Bedrooms3
  • Bathrooms4.00
  • Full Baths3
  • Half Baths1
  • Square Footage2,794
  • Year Built2026
  • TypeResidential
  • Sub-TypeCondominium
  • StatusActive

Community Information

  • Address500 Hendricks Isle #2s
  • Area3280
  • SubdivisionLumiere
  • CityFort Lauderdale
  • CountyBroward
  • StateFL
  • Zip Code33301

Amenities

  • UtilitiesCable Available
  • # of Garages2
  • ViewWater, Canal, Direct Ocean

Amenities

Fitness Center, Parking, Pool, Bike Storage, Maintenance

Parking

Assigned, Guest, Under Building, Garage, Attached Garage, Attached

Waterfront

No Fixed Bridge, Ocean Access, Canal Front, No Fixed Bridges, Canal Width 121 Feet or More

Interior

  • HeatingZoned
  • CoolingZoned
  • FireplaceYes
  • # of Stories5

Interior Features

Pantry, Wet Bar, Walk-In Closet(s), Bedroom Layout - Split, Storage

Appliances

Electric Water Heater, Dryer, Disposal, Dishwasher, Gas Range, Ice Maker, Microwave, Oven, Refrigerator, Water Heater, Water Purifier, Water Softener, Washer

Exterior

  • Exterior FeaturesLighting, Balcony
  • ConstructionCBS

Additional Information

  • Date ListedSeptember 9th, 2025
  • Days on Website178
  • HOA Fees Freq.Monthly
  • Office: Premier Estate Properties Inc.

Property Location

Please provide a valid email address.

500 Hendricks Isle #2s on www.webmail.jupiterabacoahomes.us

Offered at the current list price of $2,999,900, this home for sale at 500 Hendricks Isle #2s features 3 bedrooms and 4 bathrooms. This real estate listing is located in Lumiere of Fort Lauderdale, FL 33301 and is approximately 2,794 square feet. 500 Hendricks Isle #2s is listed under the MLS ID of F10525757 and has been available through www.webmail.jupiterabacoahomes.us for the Fort Lauderdale real estate market for 178 days.

Similar Listings to 500 Hendricks Isle #2s

Photo of Listing #R11133680
  • MLS® #: R11133680
  • 30 Isle Of Venice Drive #ph3
  • Fort Lauderdale, FL 33301
  • $3,000,000
  • 3 Bed, 2 Bath, 2,590 SqFt
  • Residential
Add as Favorite
Photo of Listing #F10525776
  • MLS® #: F10525776
  • 500 Hendricks Isle #3s
  • Fort Lauderdale, FL 33301
  • $3,220,000
  • 3 Bed, 4 Bath, 2,811 SqFt
  • Residential
Add as Favorite
Photo of Listing #F10544641
  • MLS® #: F10544641
  • 160 Isle Of Venice Drive #302
  • Fort Lauderdale, FL 33301
  • $3,195,000
  • 3 Bed, 4 Bath, 2,918 SqFt
  • Residential
Add as Favorite
Photo of Listing #R11162196
  • MLS® #: R11162196
  • 41 Isle Of Venice Drive #ph 502
  • Fort Lauderdale, FL 33301
  • $2,699,999
  • 3 Bed, 4 Bath, 2,531 SqFt
  • Residential
Add as Favorite

All listings featuring the BMLS logo are provided by Beaches MLS Inc. Copyright 2026 Beaches MLS. This information is not verified for authenticity or accuracy and is not guaranteed.
© 2026 Beaches Multiple Listing Service, Inc. All rights reserved.

Listing information last updated on March 6th, 2026 at 10:01pm CST.