1. Home
  2. Search Listings
  3. 2525 Center Road Fort Pierce, FL - 34946
  • MLS® #: R11051797
  • 2525 Center Road
  • Fort Pierce, FL 34946
  • $6,500,000
  • 56.60 Acres
  • Land & Docks

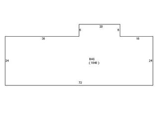
LOCATION! 56.6 total acres, ideal for any business that conducts light or heavy industrial use. Site approved for 360,000 sq ft warehouses and a recycling facility. Land is considered Brownfield and has many tax benefits. Enviro Phase 1 and 2 completed as well as other assessments paid. A 1,848 sqft CBS structure on site, .5 mi from commercial TCI airport, direct access to I-95, close to the inlet/port, and turnpike. 36 acres- LI, 20 acres - HI, This is a PRIME location in South Florida- Fort Pierce is growing FAST!

Essential Information

  • MLS® #R11051797
  • Price$6,500,000
  • Acres56.60
  • TypeLand & Docks
  • Sub-TypeUnimproved Land
  • StatusActive

Community Information

  • Address2525 Center Road
  • Area7070
  • Subdivisionnone
  • CityFort Pierce
  • CountySt. Lucie
  • StateFL
  • Zip Code34946

Exterior

  • Lot DescriptionUtility Building

Additional Information

  • Date ListedJuly 14th, 2025
  • Days on Website234
  • ZoningIndustrial
  • Office: Laer Realty Partners Bowen/wellington

Property Location

Please provide a valid email address.

2525 Center Road on www.webmail.jupiterabacoahomes.us

Offered at the current list price of $6,500,000, this home for sale at 2525 Center Road features bedrooms and 0 bathrooms. This real estate listing is located in none of Fort Pierce, FL 34946 . 2525 Center Road is listed under the MLS ID of R11051797 and has been available through www.webmail.jupiterabacoahomes.us for the Fort Pierce real estate market for 234 days.

Similar Listings to 2525 Center Road

Photo of Listing #R11088863
  • MLS® #: R11088863
  • 3032 N 25th Street
  • Fort Pierce, FL 34946
  • $6,500,000
  • Land & Docks
Add as Favorite
Photo of Listing #R10985601
  • MLS® #: R10985601
  • 8560 Okeechobee Road
  • Fort Pierce, FL 34945
  • $6,500,000
  • Land & Docks
Add as Favorite
Photo of Listing #R11152816
  • MLS® #: R11152816
  • Xxxx S Ocean Drive
  • Fort Pierce, FL 34949
  • $5,900,000
  • 2.65 Acres
  • Land & Docks
Add as Favorite
Photo of Listing #R11090791
  • MLS® #: R11090791
  • 0 Lamont Road
  • Fort Pierce, FL 34947
  • $6,500,000
  • 22.63 Acres
  • Land & Docks
Add as Favorite

All listings featuring the BMLS logo are provided by Beaches MLS Inc. Copyright 2026 Beaches MLS. This information is not verified for authenticity or accuracy and is not guaranteed.
© 2026 Beaches Multiple Listing Service, Inc. All rights reserved.

Listing information last updated on March 5th, 2026 at 12:46pm CST.