1. Home
  2. Search Listings
  3. Tbd Miramar Avenue Fort Pierce, FL - 34951
  • MLS® #: R11089690
  • Tbd Miramar Avenue
  • Fort Pierce, FL 34951
  • $5,000,000
  • 9.44 Acres
  • Land & Docks

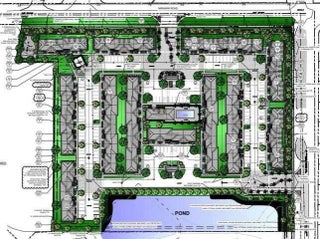
Introducing an exceptional opportunity for multifamily residential development. This prime property of 9.44 acres boasts an unbeatable location just minutes away from beach access and offers unparalleled convenience being only 5 miles east of I-95 and Florida's Turnpike. With its coveted zoning of RM-9, this parcel presents a range of possibilities for developers seeking to create a thriving community. Site plans have been approved and ready to submit for permitting. St. Lucie county has granted development order extension for this project out until Oct 3rd, 2028. The potential for this property is truly impressive, with the current plans allowing for the construction of 84 apartments or townhouses. Water and sewer services are readily available through the city. While the internal roads may require development, the presence of perimeter roads adds convenience and accessibility to the site which has been cleared and ready to break ground. For developers looking to streamline the due diligence process, this property comes fully entitled for the proposed use of multifamily residential development. This eliminates potential hurdles and accelerates the timeline for construction, providing a valuable head start. In summary, this property presents an excellent location for multifamily development. With its proximity to the beach, convenient access to major road ways, it is a compelling opportunity for developers seeking a prosperous venture. Don't miss out on the chance to shape a growing community in this highly sought-after area!

Essential Information

  • MLS® #R11089690
  • Price$5,000,000
  • Acres9.44
  • TypeLand & Docks
  • Sub-TypeUnimproved Land
  • StatusActive

Community Information

  • AddressTbd Miramar Avenue
  • Area7040
  • SubdivisionMETES AND BOUNDS
  • CityFort Pierce
  • CountySt. Lucie
  • StateFL
  • Zip Code34951

Exterior

  • Lot DescriptionCleared, Street Lights

Additional Information

  • Date ListedNovember 16th, 2025
  • Days on Website109
  • ZoningRM-9Co
  • Office: Atlantic Shores Era Powered

Property Location

Please provide a valid email address.

Tbd Miramar Avenue on www.webmail.jupiterabacoahomes.us

Offered at the current list price of $5,000,000, this home for sale at Tbd Miramar Avenue features bedrooms and 0 bathrooms. This real estate listing is located in METES AND BOUNDS of Fort Pierce, FL 34951 . Tbd Miramar Avenue is listed under the MLS ID of R11089690 and has been available through www.webmail.jupiterabacoahomes.us for the Fort Pierce real estate market for 109 days.

Similar Listings to Tbd Miramar Avenue

Photo of Listing #R11088872
  • MLS® #: R11088872
  • 3034 N 25th Street
  • Fort Pierce, FL 34946
  • $4,300,000
  • Land & Docks
Add as Favorite
Photo of Listing #R11153371
  • MLS® #: R11153371
  • 6155 Glades Cut Off Road
  • Fort Pierce, FL 34981
  • $4,900,000
  • 7.7 Acres
  • Land & Docks
Add as Favorite
Photo of Listing #F10534754
  • MLS® #: F10534754
  • 15150 Orange Avenue
  • Fort Pierce, FL 34945
  • $4,400,000
  • 14 Acres
  • Land & Docks
Add as Favorite
Photo of Listing #R11128646
  • MLS® #: R11128646
  • 702-708 S Ocean Drive
  • Fort Pierce, FL 34949
  • $5,000,000
  • 0.43 Acres
  • Land & Docks
Add as Favorite

All listings featuring the BMLS logo are provided by Beaches MLS Inc. Copyright 2026 Beaches MLS. This information is not verified for authenticity or accuracy and is not guaranteed.
© 2026 Beaches Multiple Listing Service, Inc. All rights reserved.

Listing information last updated on March 5th, 2026 at 10:01pm CST.