1. Home
  2. Search Listings
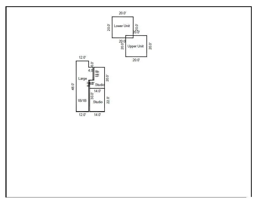
  3. 311 Wildermere Road West Palm Beach, FL - 33401
  • MLS® #: R11127544
  • 311 Wildermere Road
  • West Palm Beach, FL 33401
  • $1,295,000
  • 5 Bath, 1,906 SqFt, 0.11 Acres
  • Residential Income

Located in the desirable Mango Promenade Historic District, this 5-unit building presents a rare chance to generate income or be transformed into your dream home. Nestled in between El Cid & Downtown West Palm Beach, just 1 block from the Intracoastal Waterway, the property is moments from the beach, Worth Avenue, Palm Beach Island, City Place, Grandview Public Market, Brightline Station, & PBI Airport. The current layout provides steady rental income with room for growth, while offering flexibility to be converted into a single-family home with separate guest apartments. Enjoy walking distance to PBA University, the Norton Museum of Art, & a variety of shops, cafes, & restaurants. Schedule a private showing today & explore the countless possibilities this prime location affords. All measurements & information are deemed reliable but not guaranteed. Buyer to independently verify.

Essential Information

  • MLS® #R11127544
  • Price$1,295,000
  • Bathrooms5.00
  • Square Footage1,906
  • Acres0.11
  • Year Built1925
  • TypeResidential Income
  • Sub-TypeQuadruplex
  • StatusActive

Community Information

  • Address311 Wildermere Road
  • Area5440
  • SubdivisionCARLBERG COURT ADD 1
  • CityWest Palm Beach
  • CountyPalm Beach
  • StateFL
  • Zip Code33401

Amenities

  • AmenitiesNone
  • WaterfrontNone

Utilities

Cable Available, Sewer Available, Water Available

Interior

  • HeatingNone
  • CoolingWall/Window Unit(s)

Exterior

  • RoofComposition

Construction

Frame, Metal Siding, Wood Siding

School Information

  • ElementaryPalm Beach Public
  • HighForest Hill

Additional Information

  • Date ListedJanuary 9th, 2026
  • Days on Website59
  • ZoningMF32(c
  • Office: Compass Florida Llc

Property Location

Please provide a valid email address.

311 Wildermere Road on www.webmail.jupiterabacoahomes.us

Offered at the current list price of $1,295,000, this home for sale at 311 Wildermere Road features bedrooms and 5 bathrooms. This real estate listing is located in CARLBERG COURT ADD 1 of West Palm Beach, FL 33401 and is approximately 1,906 square feet. 311 Wildermere Road is listed under the MLS ID of R11127544 and has been available through www.webmail.jupiterabacoahomes.us for the West Palm Beach real estate market for 59 days.

Facts About West Palm Beach, FL

West Palm Beach is home to over one million people and is the 3rd most populated city in the state of Florida.

Raymond F. Kravis Center for the Performing Arts is the culture icon for the West Palm Beach Area. This 2000 plus seat venue hosts a treasure of Dance, Music and Dramatic performances each year.

West Palm Beach is home to many festivals and events. They are often hosted at Currie Park which is a scenic family friendly park located on West Palm Beache's Intracoastal Waterway.

Similar Listings to 311 Wildermere Road

Photo of Listing #R11102070
  • MLS® #: R11102070
  • 3808 Broadway
  • West Palm Beach, FL 33407
  • $1,175,000
  • 4 Bath, 2,586 SqFt, 0.15 Acres
  • Residential Income
Add as Favorite

All listings featuring the BMLS logo are provided by Beaches MLS Inc. Copyright 2026 Beaches MLS. This information is not verified for authenticity or accuracy and is not guaranteed.
© 2026 Beaches Multiple Listing Service, Inc. All rights reserved.

Listing information last updated on March 9th, 2026 at 9:59pm CDT.