1. Home
  2. Search Listings
  3. 7520 Lexington Club Boulevard #a Delray Beach, FL - 33446
  • MLS® #: R11156354
  • 7520 Lexington Club Boulevard #a
  • Delray Beach, FL 33446
  • $349,900
  • 2 Beds, 2 Bath, 1,657 SqFt
  • Residential

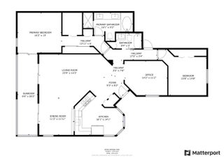
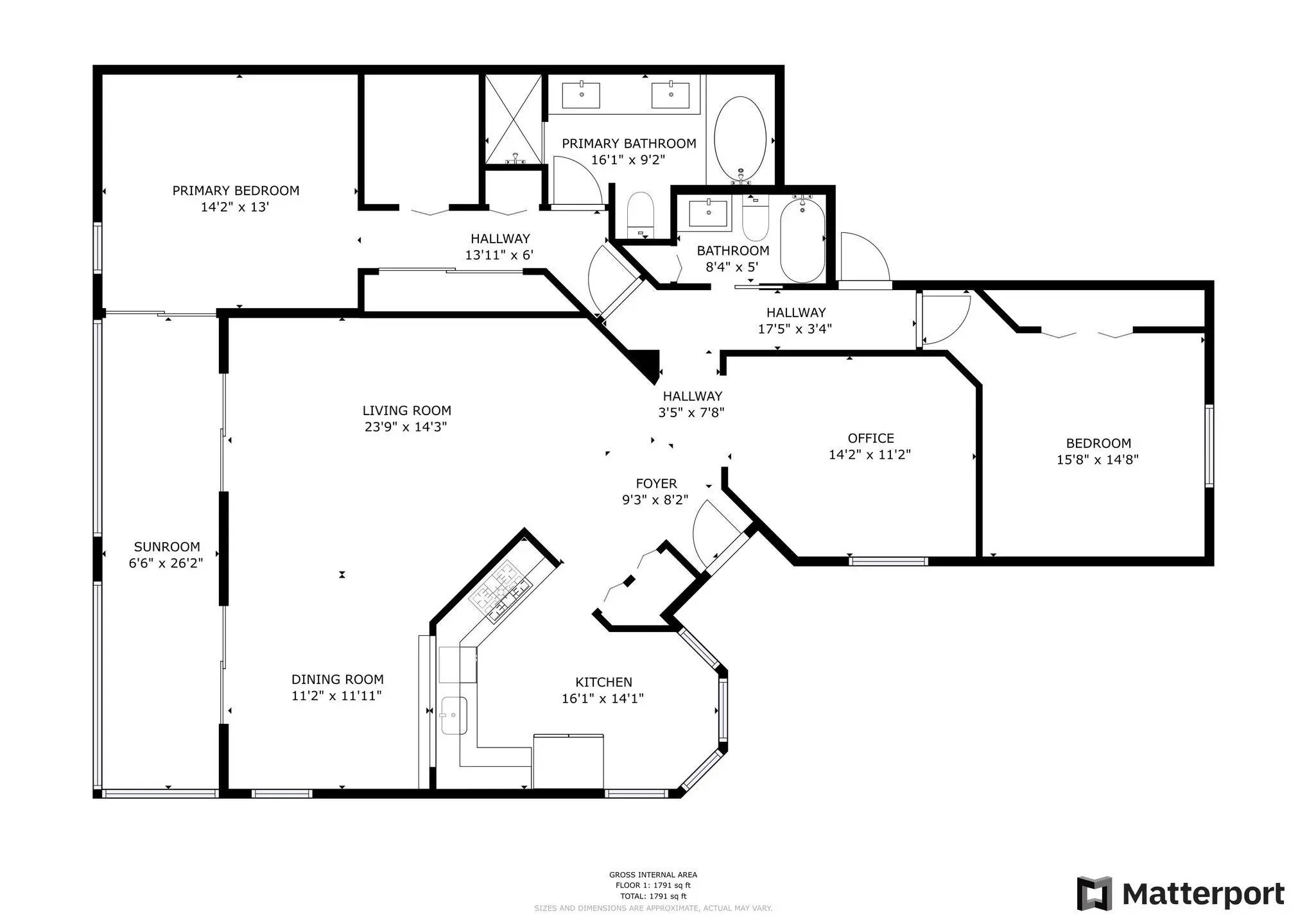
Welcome home to this inviting townhouse in the desirable Lexington Club community of Delray Beach. This well-appointed model offers 2 bedrooms, 2 full bathrooms, a den/office, and 1,657 square feet of comfortable living space. The light-filled eat-in kitchen features a convenient pass-through to the dining area, perfect for everyday living and entertaining. Vaulted ceilings enhance the open, airy layout throughout the main living areas. The spacious primary suite includes a walk-in closet and dual sliding doors that open directly to the patio. The updated primary bathroom is designed for relaxation, featuring dual vanities, a separate shower, and a Roman tub. Head outside to the expansive 28 x 8 screened patio with roll-down enclosures, ideal for enjoying Florida living year-round. Residents of Lexington Club enjoy access to outstanding amenities such as a fitness center, spa, hot tub, and more. Maintenance fee includes: Roof and all exterior wall maintenance, Internet and TV Cable, Water, Security, Lawn and Garden care, Common Areas, Common R.E. Tax, Insurance-Bldg, Insurance-Other, Management Fees, Outdoor Pest Control, and Various clubhouse activities and amenities. Don't miss the opportunity to see this home, schedule your showing today.

Essential Information

  • MLS® #R11156354
  • Price$349,900
  • Bedrooms2
  • Bathrooms2.00
  • Full Baths2
  • Square Footage1,657
  • Year Built1988
  • TypeResidential
  • Sub-TypeTownhouse
  • StatusActive

Community Information

  • Area4640
  • SubdivisionLEXINGTON CLUB 3
  • CityDelray Beach
  • CountyPalm Beach
  • StateFL
  • Zip Code33446

Address

7520 Lexington Club Boulevard #a

Amenities

  • Parking Spaces4
  • # of Garages1
  • ViewGarden
  • WaterfrontNone

Amenities

Clubhouse, Fitness Center, Pool, Shuffleboard Court, Spa/Hot Tub, Tennis Court(s), Manager On Site, Internet Included, Pickleball Court(s)

Utilities

Cable Available, Sewer Available, Water Available

Parking

Garage Door Opener, Guest, Garage, Attached Garage

Interior

  • HeatingCentral, Electric
  • # of Stories1

Interior Features

Cathedral Ceiling(s), Pantry, Vaulted Ceiling(s), Walk-In Closet(s), Bedroom Layout - Split, Roman Tub

Appliances

Electric Water Heater, Dryer, Disposal, Dishwasher, Electric Range, Microwave, Refrigerator, Water Heater, Washer

Cooling

Central Air, Ceiling Fan(s), Electric

Exterior

  • Lot DescriptionCul-De-Sac
  • WindowsBlinds, Single Hung Metal
  • RoofBarrel
  • ConstructionStucco, CBS

School Information

  • ElementaryOrchard View
  • MiddleCarver Community
  • HighSpanish River

Additional Information

  • Date ListedJanuary 21st, 2026
  • Days on Website52
  • ZoningRS
  • HOA Fees959
  • HOA Fees Freq.Monthly
  • Office: Redfin Corporation

Property Location

Please provide a valid email address.

7520 Lexington Club Boulevard #a on www.webmail.jupiterabacoahomes.us

Offered at the current list price of $349,900, this home for sale at 7520 Lexington Club Boulevard #a features 2 bedrooms and 2 bathrooms. This real estate listing is located in LEXINGTON CLUB 3 of Delray Beach, FL 33446 and is approximately 1,657 square feet. 7520 Lexington Club Boulevard #a is listed under the MLS ID of R11156354 and has been available through www.webmail.jupiterabacoahomes.us for the Delray Beach real estate market for 52 days.

Similar Listings to 7520 Lexington Club Boulevard #a

Photo of Listing #R11145045
  • MLS® #: R11145045
  • 5355 10th Fairway Drive #1
  • Delray Beach, FL 33484
  • $375,000
  • 3 Bed, 3 Bath, 1,920 SqFt
  • Residential
Add as Favorite
Photo of Listing #R11147247
  • MLS® #: R11147247
  • 2622 Nw 7th Court #b
  • Delray Beach, FL 33445
  • $325,000
  • 2 Bed, 3 Bath, 1,384 SqFt
  • Residential
Add as Favorite
Photo of Listing #R11135377
  • MLS® #: R11135377
  • 1540 Masters Circle #180
  • Delray Beach, FL 33445
  • $334,900
  • 2 Bed, 3 Bath, 1,288 SqFt
  • Residential
Add as Favorite
Photo of Listing #F10541154
  • MLS® #: F10541154
  • 747 Nw 30th Avenue #d
  • Delray Beach, FL 33445
  • $310,000
  • 2 Bed, 3 Bath, 1,384 SqFt
  • Residential
Add as Favorite

All listings featuring the BMLS logo are provided by Beaches MLS Inc. Copyright 2026 Beaches MLS. This information is not verified for authenticity or accuracy and is not guaranteed.
© 2026 Beaches Multiple Listing Service, Inc. All rights reserved.

Listing information last updated on March 14th, 2026 at 3:44am CDT.