1. Home
  2. Search Listings
  3. 3901 Wild Turkey Trl Okeechobee, FL - 34974
  • MLS® #: RX-11060512
  • 3901 Wild Turkey Trl
  • Okeechobee, FL 34974
  • $2,490,000
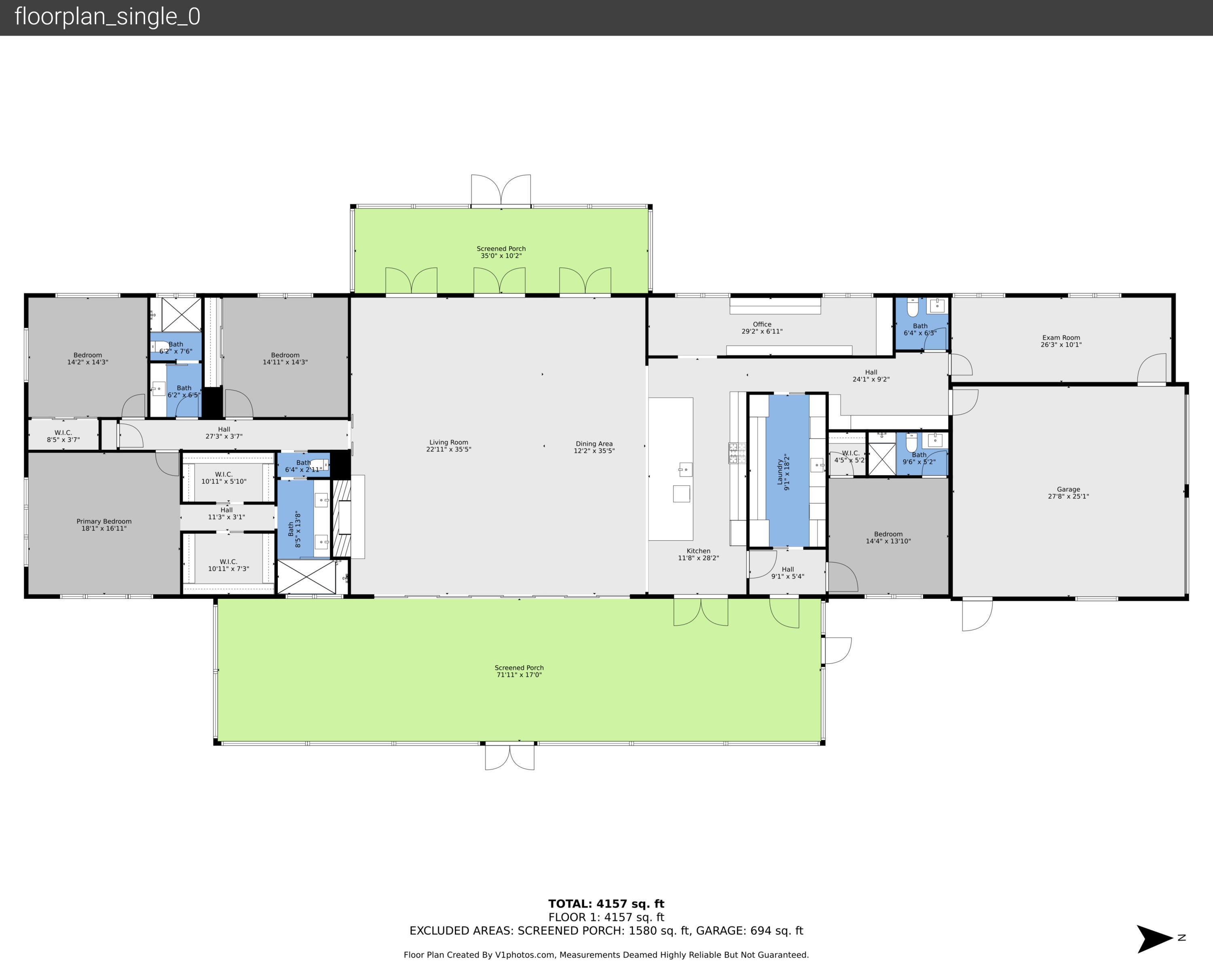
  • 4 Beds, 4 Bath, 4,521 SqFt
  • Residential

Country living with High level finishes you would normally see in a waterfront mansion. 15 Minutes west of Palm City in Unincorporated Martin County sits this 20 Acre homesite 3 paddocks of 5 acres each. This home will not disappoint! Huge 1242 sq ft living room with 17 ft Wood ceiling perfect for entertaining. Smart Home technology and 400-amp service.48 Kw Standby Generator and 500 Gallon Propane tank. Bluestar range and ovens and Sub-Zero refrigerator, Scotsman icemaker,50-amp hookup for motorhome. and huge kitchen Island. 2 master suites in the home perfect for multi-generational living. Upgraded insulation and efficiency electrical bill has not gone over $250 ever!! Barn with living quarters as well for any workers coming in with dedicated bathroom and electrical.

View Virtual Tour

Essential Information

  • MLS® #RX-11060512
  • Price$2,490,000
  • Bedrooms4
  • Bathrooms4.00
  • Full Baths3
  • Half Baths1
  • Square Footage4,521
  • Year Built2020
  • TypeResidential
  • Sub-TypeSingle Family Detached
  • StyleContemporary, Ranch
  • StatusActive

Community Information

  • Address3901 Wild Turkey Trl
  • Area10 - Palm City West/Indiantown
  • CityOkeechobee
  • CountyMartin
  • StateFL
  • Zip Code34974

Subdivision

665000 Stuart Woods Ranch Hosanah Ln

Amenities

  • AmenitiesNone
  • # of Garages2
  • ViewOther
  • WaterfrontPond

Utilities

3-Phase Electric, Septic, Well Water

Parking

2+ Spaces, Driveway, Garage - Attached, RV/Boat

Interior

  • CoolingCentral, Electric
  • FireplaceYes
  • # of Stories1
  • Stories1.00

Interior Features

Built-in Shelves, Ctdrl/Vault Ceilings, Entry Lvl Lvng Area, Fireplace(s), Foyer, Cook Island, Laundry Tub, Pantry, Split Bedroom, Volume Ceiling, Walk-in Closet

Appliances

Dishwasher, Generator Whle House, Ice Maker, Microwave, Purifier, Refrigerator

Heating

Central, Electric, Central Building

Exterior

  • WindowsImpact Glass
  • RoofMetal
  • ConstructionCBS, Concrete

Exterior Features

Room for Pool, Screen Porch, Screened Patio, Utility Barn

Lot Description

10 to <25 Acres, Private Road, Shell Rock Road

Additional Information

  • Date ListedFebruary 8th, 2025
  • Days on Website275
  • ZoningRes
  • HOA Fees40
  • HOA Fees Freq.Monthly
  • Office: Re/max Gold

Property Location

Please provide a valid email address.

3901 Wild Turkey Trl on www.webmail.jupiterabacoahomes.us

Offered at the current list price of $2,490,000, this home for sale at 3901 Wild Turkey Trl features 4 bedrooms and 4 bathrooms. This real estate listing is located in 665000 Stuart Woods Ranch Hosanah Ln of Okeechobee, FL 34974 and is approximately 4,521 square feet. 3901 Wild Turkey Trl is listed under the MLS ID of RX-11060512 and has been available through www.webmail.jupiterabacoahomes.us for the Okeechobee real estate market for 275 days.

Similar Listings to 3901 Wild Turkey Trl

Photo of Listing #RX-11025997
  • MLS® #: RX-11025997
  • 9999 Ne 120th St
  • Okeechobee, FL 34972
  • $2,898,000
  • 4 Bed, 4 Bath, 12,581 SqFt
  • Residential
Add as Favorite

All listings featuring the BMLS logo are provided by Beaches MLS Inc. Copyright 2025 Beaches MLS. This information is not verified for authenticity or accuracy and is not guaranteed.
© 2025 Beaches Multiple Listing Service, Inc. All rights reserved.

Listing information last updated on November 10th, 2025 at 9:33am CST.