1. Home
  2. Search Listings
  3. 2727-2745 Ne 30th Av #1-4 Lighthouse Point, FL - 33064
  • MLS® #: RX-11068488
  • 2727-2745 Ne 30th Av #1-4
  • Lighthouse Point, FL 33064
  • $2,490,000
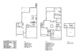
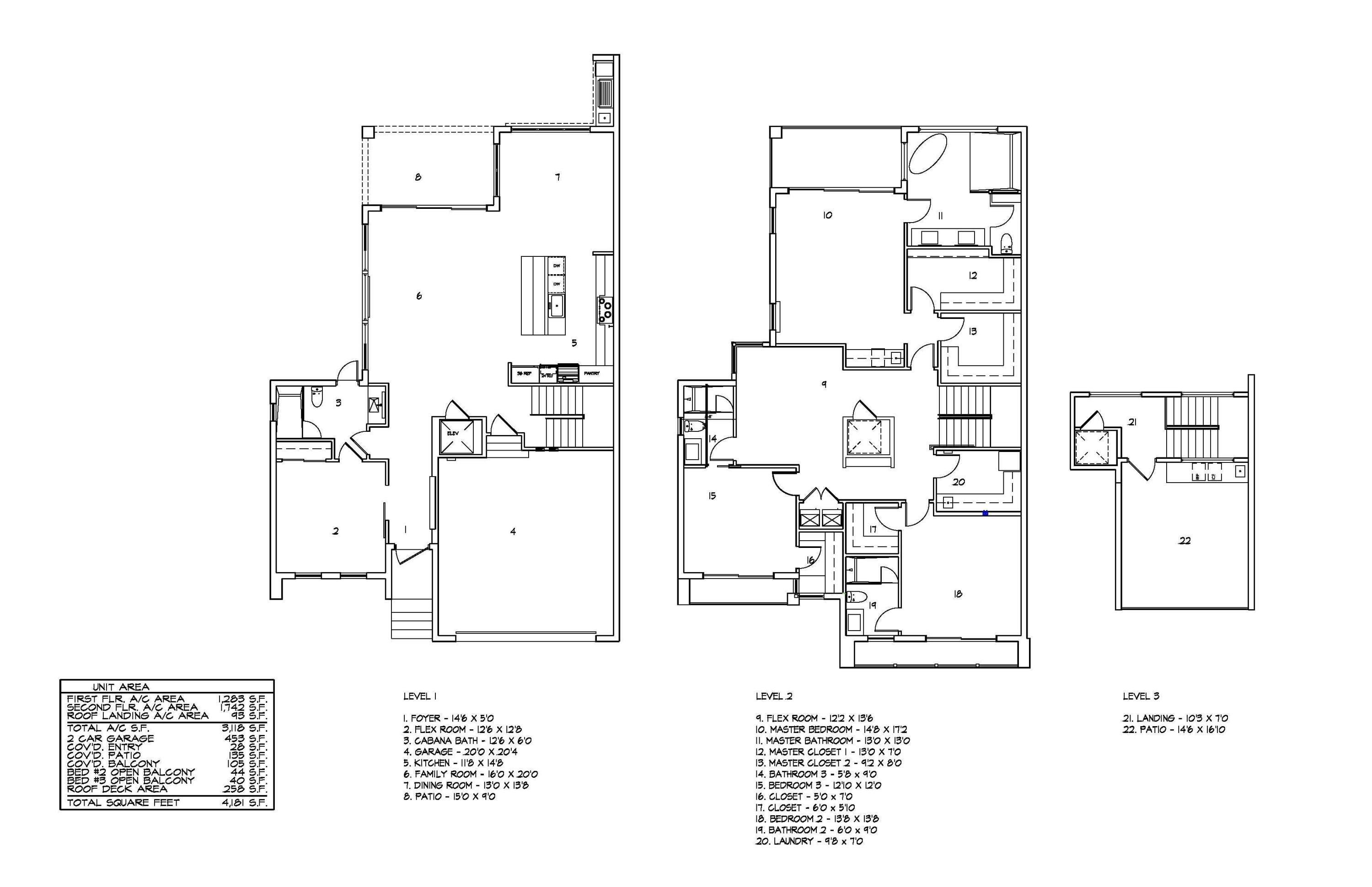
  • 4 Beds, 4 Bath, 3,118 SqFt
  • Residential

INVESTOR/BUILDER/DEVELOPER OFFERING**** PACKAGE SALE TO INCLUDEFOUR LARGE APARTMENT HOMES (TWO DUPLEXES) ON A COMBINED LOT SIZE OF 19000 SQUARE FEET ACROSS FROM THE INTRACOASTAL IN THE MARINA SECTION OF THE PRIVATE CITY OF LIGHTHOUSE POINT FLORIDA. SALE INCLUDES LEASES IN PLACE, COMPLETED AND APPROVED ARCHITECTURAL DRAWINGS FOR EITHER 4 TOWN HOMES OR 4 SINGLE FAMILY HOMES PLUS DESIGNER RENDERINGS. THE DUPLEXES ARE LEASED AND GENERATE $11,000 PER MONTH IN RENTS THAT ARE BELOW MARKET. ALL UNITS ARE BETWEEN 1471 SQ/FT AND 1600 SQ/FT TWO 2/2'S AND TWO 3/2'S ALL WITH PRIVATE LAUNDRY ROOMS. GREAT OPPORTUNITY IN A PRIME SOUTHEAST FLORIDA LOCATION.

View Virtual Tour

Essential Information

  • MLS® #RX-11068488
  • Price$2,490,000
  • Bedrooms4
  • Bathrooms4.00
  • Full Baths4
  • Square Footage3,118
  • Year Built1967
  • TypeResidential
  • Sub-TypeTownhouse / Villa / Row
  • StyleContemporary, Townhouse
  • StatusActive

Community Information

  • Address2727-2745 Ne 30th Av #1-4
  • Area3222
  • SubdivisionLIGHTHOUSE POINT 2ND SEC
  • CityLighthouse Point
  • CountyBroward
  • StateFL
  • Zip Code33064

Amenities

  • ParkingDriveway, Garage - Attached
  • # of Garages2
  • ViewPool, Marina, Other
  • WaterfrontNone
  • Has PoolYes
  • PoolHeated, Inground, Salt Water

Amenities

Library, Park, Pickleball, Playground, Sidewalks, Street Lights, Tennis, Boating, Ball Field

Utilities

3-Phase Electric, Public Sewer, Public Water

Interior

  • HeatingCentral, Electric, Zoned
  • CoolingCentral, Electric, Zoned
  • # of Stories3
  • Stories3.00

Interior Features

Entry Lvl Lvng Area, Cook Island, Upstairs Living Area, Walk-in Closet

Appliances

Cooktop, Dishwasher, Disposal, Dryer, Ice Maker, Microwave, Refrigerator, Smoke Detector, Washer, Water Heater - Elec, Auto Garage Open, Central Vacuum, Generator Hookup

Exterior

  • WindowsImpact Glass
  • RoofOther
  • ConstructionCBS

Exterior Features

Auto Sprinkler, Covered Balcony, Covered Patio, Custom Lighting, Outdoor Shower, Summer Kitchen

Lot Description

< 1/4 Acre, 1/4 to 1/2 Acre, East of US-1

Additional Information

  • Date ListedMarch 5th, 2025
  • Days on Website251
  • ZoningRD-10
  • HOA Fees1
  • HOA Fees Freq.Monthly
  • Office: Exceptional Properties Inc

Property Location

Please provide a valid email address.

2727-2745 Ne 30th Av #1-4 on www.webmail.jupiterabacoahomes.us

Offered at the current list price of $2,490,000, this home for sale at 2727-2745 Ne 30th Av #1-4 features 4 bedrooms and 4 bathrooms. This real estate listing is located in LIGHTHOUSE POINT 2ND SEC of Lighthouse Point, FL 33064 and is approximately 3,118 square feet. 2727-2745 Ne 30th Av #1-4 is listed under the MLS ID of RX-11068488 and has been available through www.webmail.jupiterabacoahomes.us for the Lighthouse Point real estate market for 251 days.

All listings featuring the BMLS logo are provided by Beaches MLS Inc. Copyright 2025 Beaches MLS. This information is not verified for authenticity or accuracy and is not guaranteed.
© 2025 Beaches Multiple Listing Service, Inc. All rights reserved.

Listing information last updated on November 11th, 2025 at 10:30pm CST.