1. Home
  2. Search Listings
  3. 7805 White Ibis Lane Port Saint Lucie, FL - 34952
  • MLS® #: RX-11104936
  • 7805 White Ibis Lane
  • Port Saint Lucie, FL 34952
  • $230,000
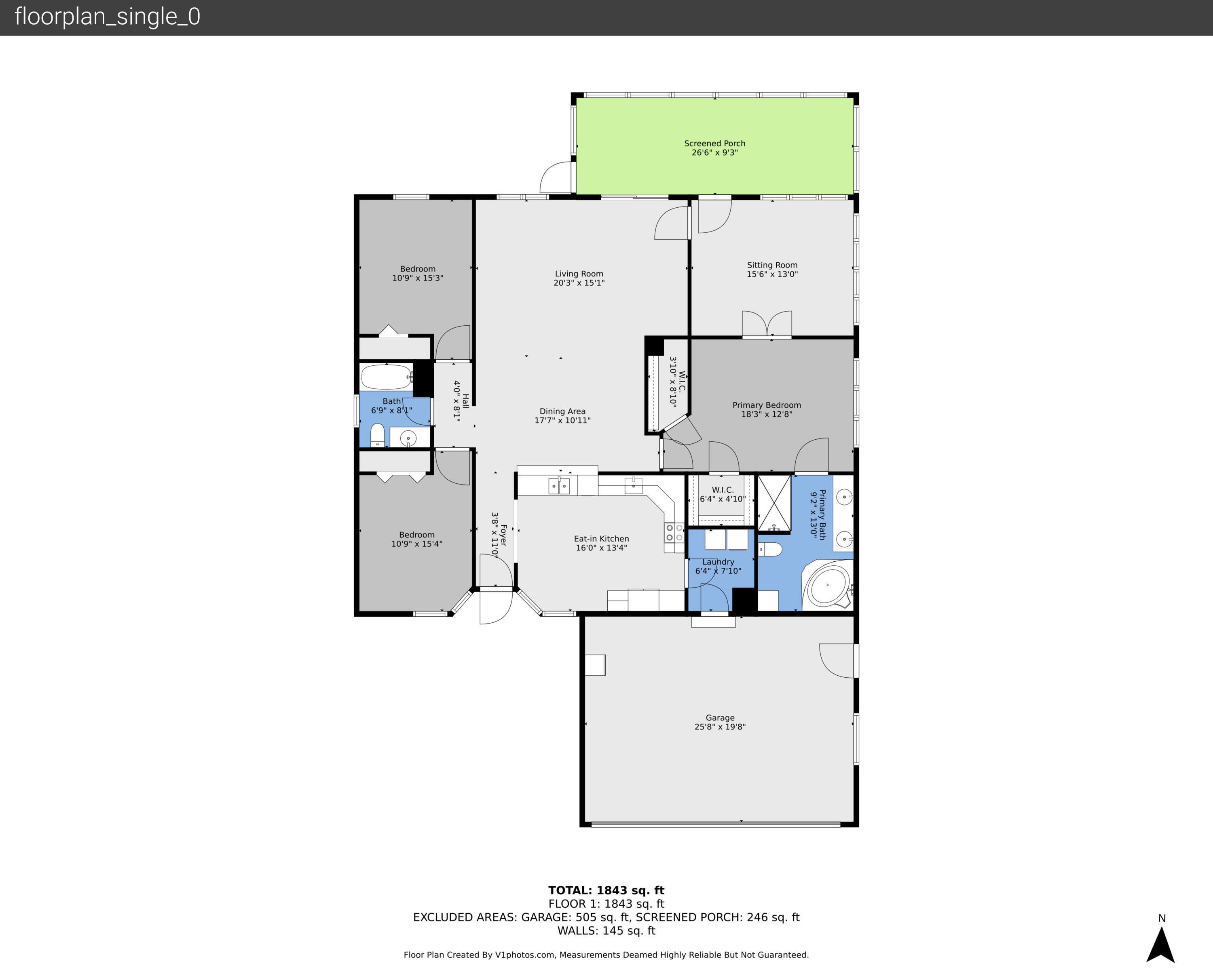
  • 3 Beds, 2 Bath, 1,988 SqFt
  • Residential

Three bedrooms, office/den, enclosed lanai with nice preserve view, formal dining, eat in kitchen, 2 master bedroom closets, 2 sinks, irrigation well, AND AN EXTRA WIDE GARAGE. Savanna Club is a 55+ golf/swim/tennis community with three clubhouses. Clubhouses each have a fitness center & pool. Living sq ft 1,988 plus enclosed lanai and garage. Measurements are approximate. Bedrooms are split. An exceptional home for exceptional people just like you! Enjoy the Florida Lifestyle in this active 55+ community of Savanna Club. This is a land Leased property with a monthly rate for first 3 years of approximately 432/541/655 monthly. Measurements are approximate.

View Virtual Tour

Essential Information

  • MLS® #RX-11104936
  • Price$230,000
  • Bedrooms3
  • Bathrooms2.00
  • Full Baths2
  • Square Footage1,988
  • Year Built2003
  • TypeResidential
  • Sub-TypeMobile/Manufactured
  • Style< 4 Floors, Traditional
  • StatusActive Under Contract

Community Information

  • Address7805 White Ibis Lane
  • Area7190
  • SubdivisionSavanna Club - Eagle's Retreat
  • CityPort Saint Lucie
  • CountySt. Lucie
  • StateFL
  • Zip Code34952

Amenities

  • # of Garages2
  • ViewPond, Preserve
  • WaterfrontNone

Amenities

Basketball, Billiards, Bocce Ball, Cafe/Restaurant, Clubhouse, Extra Storage, Exercise Room, Golf Course, Internet Included, Library, Manager on Site, Pickleball, Pool, Putting Green, Sauna, Shuffleboard, Tennis

Utilities

Cable, 3-Phase Electric, Public Sewer, Public Water

Parking

2+ Spaces, Driveway, Garage - Attached, Vehicle Restrictions

Interior

  • HeatingCentral
  • CoolingCentral
  • # of Stories1
  • Stories1.00

Interior Features

Entry Lvl Lvng Area, Foyer, French Door, Pantry, Sky Light(s), Split Bedroom, Volume Ceiling, Walk-in Closet

Appliances

Auto Garage Open, Dishwasher, Dryer, Microwave, Range - Electric, Refrigerator, Smoke Detector, Storm Shutters, Washer, Washer/Dryer Hookup, Water Heater - Elec

Exterior

  • ConstructionManufactured, Vinyl Siding

Exterior Features

Auto Sprinkler, Fence, Open Patio, Shutters, Well Sprinkler, Zoned Sprinkler

Lot Description

< 1/4 Acre, East of US-1, Paved Road

Additional Information

  • Date ListedJuly 4th, 2025
  • Days on Website127
  • ZoningPUD
  • HOA Fees257
  • HOA Fees Freq.Monthly
  • Office: Select Properties/treas Coast

Property Location

Please provide a valid email address.

7805 White Ibis Lane on www.webmail.jupiterabacoahomes.us

Offered at the current list price of $230,000, this home for sale at 7805 White Ibis Lane features 3 bedrooms and 2 bathrooms. This real estate listing is located in Savanna Club - Eagle's Retreat of Port Saint Lucie, FL 34952 and is approximately 1,988 square feet. 7805 White Ibis Lane is listed under the MLS ID of RX-11104936 and has been available through www.webmail.jupiterabacoahomes.us for the Port Saint Lucie real estate market for 127 days.

All listings featuring the BMLS logo are provided by Beaches MLS Inc. Copyright 2025 Beaches MLS. This information is not verified for authenticity or accuracy and is not guaranteed.
© 2025 Beaches Multiple Listing Service, Inc. All rights reserved.

Listing information last updated on November 8th, 2025 at 11:45am CST.