1. Home
  2. Search Listings
  3. 150 Nw 70 Av #03 Plantation, FL - 33317
  • MLS® #: RX-11111911
  • 150 Nw 70 Av #03
  • Plantation, FL 33317
  • $27
  • 14,845 SqFt, 0.75 Acres
  • Commercial

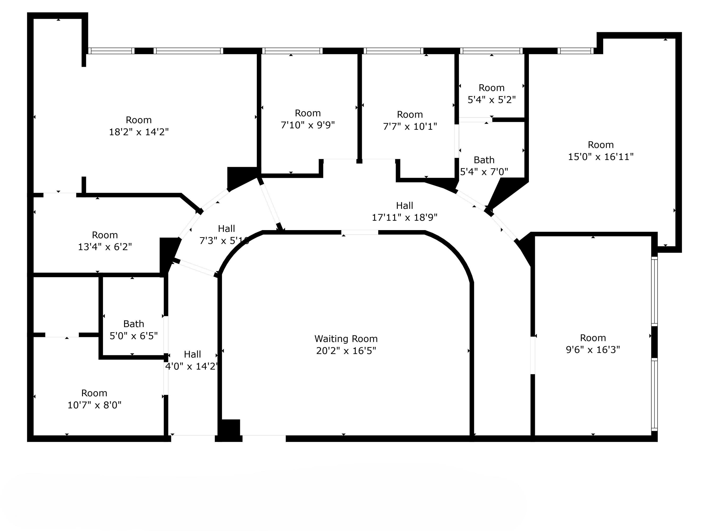
Take advantage of this incredible opportunity to lease an extremely spacious medical/office space in the heart of Plantation!This gorgeously designed suite features a modern & spacious lobby/reception area, 7 private offices, and a 2 private restrooms, 1 which is ADA approved--all within a professional, and efficient layout. The space is wheelchair accessible, filled with abundant natural light, and offers a bright, modern atmosphere that promotes comfort and professionalism.Ideal for healthcare professionals, specialists, or general office users, this suite is well-suited for medical consultations, therapy sessions, administrative tasks, or any practice that values functionality and client comfort.

View Virtual Tour

Essential Information

  • MLS® #RX-11111911
  • Price$27
  • Square Footage14,845
  • Acres0.75
  • Year Built1976
  • TypeCommercial
  • Sub-TypeMixed, Professional Office
  • StatusActive

Style

Medical, Office Space, Office/Professional

Community Information

  • Address150 Nw 70 Av #03
  • Area3760
  • CityPlantation
  • CountyBroward
  • StateFL
  • Zip Code33317

Amenities

  • Utilities3-Phase Electric

Interior

  • AppliancesNone
  • HeatingOther
  • CoolingOther
  • # of Stories2

Exterior

  • Lot DescriptionMedical/Professional
  • RoofOther

Additional Information

  • Date ListedJuly 31st, 2025
  • Days on Website211
  • ZoningB-2P
  • Office: Pellego, Llc

Property Location

Please provide a valid email address.

150 Nw 70 Av #03 on www.webmail.jupiterabacoahomes.us

Offered at the current list price of $27, this home for sale at 150 Nw 70 Av #03 features bedrooms and 0 bathrooms. This real estate listing is located in of Plantation, FL 33317 and is approximately 14,845 square feet. 150 Nw 70 Av #03 is listed under the MLS ID of RX-11111911 and has been available through www.webmail.jupiterabacoahomes.us for the Plantation real estate market for 211 days.

All listings featuring the BMLS logo are provided by Beaches MLS Inc. Copyright 2026 Beaches MLS. This information is not verified for authenticity or accuracy and is not guaranteed.
© 2026 Beaches Multiple Listing Service, Inc. All rights reserved.

Listing information last updated on February 27th, 2026 at 6:30pm CST.