1. Home
  2. Search Listings
  3. 13681 Dalrada Av #coral 34 Palm Beach Gardens, FL - 33418
  • MLS® #: RX-11118729
  • 13681 Dalrada Av #coral 34
  • Palm Beach Gardens, FL 33418
  • $1,636,980
  • 4 Beds, 3 Bath, 3,076 SqFt
  • Residential

NEW CONSTRUCTION: Premier Country Club living awaits you at Eastpointe. This beautifully appointed Coral home offers a convenient ground floor Owner's suite and spacious loft upstairs. Elegant Design choices are sure to delight you at very turn. Entertain in your Impressive Built In kitchen with double stacked cabinets and welcoming Island. Luxury vinyl planks and oversized tiles flow throughout the entire home. 8'' Solid Core Interior doors , stylish black hardware and enhanced HVAC system also included. Homesite can easily accommodate a future pool creating your own private oasis. Builder is paying Application and Initiation Fee for Social Membership.Your Social Membership includes limited golf access, fitness center use, social events, tennis and pickleball courts, Kids Club and use of card rooms. Indulge in culinary excellence at the on-site restaurants. Offering a variety of menu options, the dining experiences are ideal for casual meals, family gatherings, or elegant evenings. Eastpointe is home to two dynamic Fazio-designed courses, where every round delivers a fresh thrill. Audubon-certified and beautifully maintained, it's golf at its most inspiring. Full golf memberships are available but not required.

View Virtual Tour

Essential Information

  • MLS® #RX-11118729
  • Price$1,636,980
  • Bedrooms4
  • Bathrooms3.00
  • Full Baths3
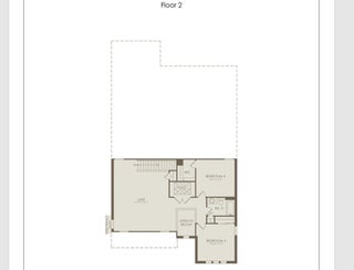
  • Square Footage3,076
  • Year Built2025
  • TypeResidential
  • Sub-TypeSingle Family Detached
  • StatusPrice Change

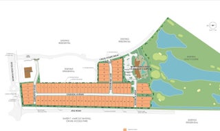
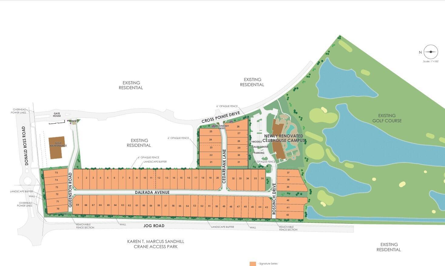
Community Information

  • Address13681 Dalrada Av #coral 34
  • Area5340
  • SubdivisionTHE RESERVE AT EASTPOINTE
  • CityPalm Beach Gardens
  • CountyPalm Beach
  • StateFL
  • Zip Code33418

Amenities

  • UtilitiesUnderground
  • # of Garages2
  • ViewOther
  • WaterfrontNone

Amenities

Cabana, Cafe/Restaurant, Clubhouse, Exercise Room, Golf Course, Manager on Site, Pickleball, Pool, Putting Green, Sidewalks

Parking

2+ Spaces, Drive - Decorative, Garage - Attached, Vehicle Restrictions

Interior

  • HeatingCentral, Zoned
  • CoolingCentral, Zoned
  • # of Stories2
  • Stories2.00

Interior Features

Foyer, Cook Island, Laundry Tub, Pantry, Split Bedroom, Upstairs Living Area, Volume Ceiling, Walk-in Closet

Appliances

Auto Garage Open, Cooktop, Dishwasher, Disposal, Dryer, Microwave, Refrigerator, Smoke Detector, Wall Oven, Washer, Water Heater - Elec

Exterior

  • WindowsImpact Glass
  • ConstructionCBS

Exterior Features

Covered Patio, Open Porch, Room for Pool

Lot Description

< 1/4 Acre, Sidewalks, Zero Lot

Additional Information

  • Date ListedAugust 26th, 2025
  • Days on Website138
  • ZoningPUD
  • HOA Fees566
  • HOA Fees Freq.Monthly
  • Office: Pulte Realty Inc

Property Location

Please provide a valid email address.

13681 Dalrada Av #coral 34 on www.webmail.jupiterabacoahomes.us

Offered at the current list price of $1,636,980, this home for sale at 13681 Dalrada Av #coral 34 features 4 bedrooms and 3 bathrooms. This real estate listing is located in THE RESERVE AT EASTPOINTE of Palm Beach Gardens, FL 33418 and is approximately 3,076 square feet. 13681 Dalrada Av #coral 34 is listed under the MLS ID of RX-11118729 and has been available through www.webmail.jupiterabacoahomes.us for the Palm Beach Gardens real estate market for 138 days.

Facts About Palm Beach Gardens, FL

Palm Beach Gardens was developed by John D. MacArthur in 1959. His original chosen name for the city was Palm Beach City, but this name was not approved by Florida legislature. Therefore, MacArthur named the city, Palm Beach Gardens.

Palm Beach Gardens is home to the Downtown at the Gardens shopping center which is home to some of the finest retail shops and restaurants in South Florida.

Palm Beach Gardens and the rest of South Florida suffered extensive damage when it was hit by hurricanes Frances, Jeanne and Wilma in 2004 and 2005.

Similar Listings to 13681 Dalrada Av #coral 34

Photo of Listing #RX-11093753
  • MLS® #: RX-11093753
  • 13808 Dalrada Av #scarlett 67
  • Palm Beach Gardens, FL 33418
  • $1,701,325
  • 5 Bed, 5 Bath, 3,810 SqFt
  • Residential
Add as Favorite
Photo of Listing #RX-11112940
  • MLS® #: RX-11112940
  • 13813 Dalrada Av #coral 002
  • Palm Beach Gardens, FL 33418
  • $1,649,810
  • 4 Bed, 3 Bath, 3,076 SqFt
  • Residential
Add as Favorite
Photo of Listing #RX-11062282
  • MLS® #: RX-11062282
  • 2098 Dickens Ter
  • Palm Beach Gardens, FL 33418
  • $1,595,000
  • 4 Bed, 4 Bath, 3,052 SqFt
  • Residential
Add as Favorite
Photo of Listing #RX-11064401
  • MLS® #: RX-11064401
  • 13229 Faberge Pl
  • Palm Beach Gardens, FL 33418
  • $1,495,000
  • 4 Bed, 3 Bath, 2,371 SqFt
  • Residential
Add as Favorite

All listings featuring the BMLS logo are provided by Beaches MLS Inc. Copyright 2026 Beaches MLS. This information is not verified for authenticity or accuracy and is not guaranteed.
© 2026 Beaches Multiple Listing Service, Inc. All rights reserved.

Listing information last updated on January 12th, 2026 at 1:30am CST.