1. Home
  2. Search Listings
  3. 1801 S 23rd St #3 Fort Pierce, FL - 34950
  • MLS® #: RX-11125220
  • 1801 S 23rd St #3
  • Fort Pierce, FL 34950
  • $500,000
  • Commercial

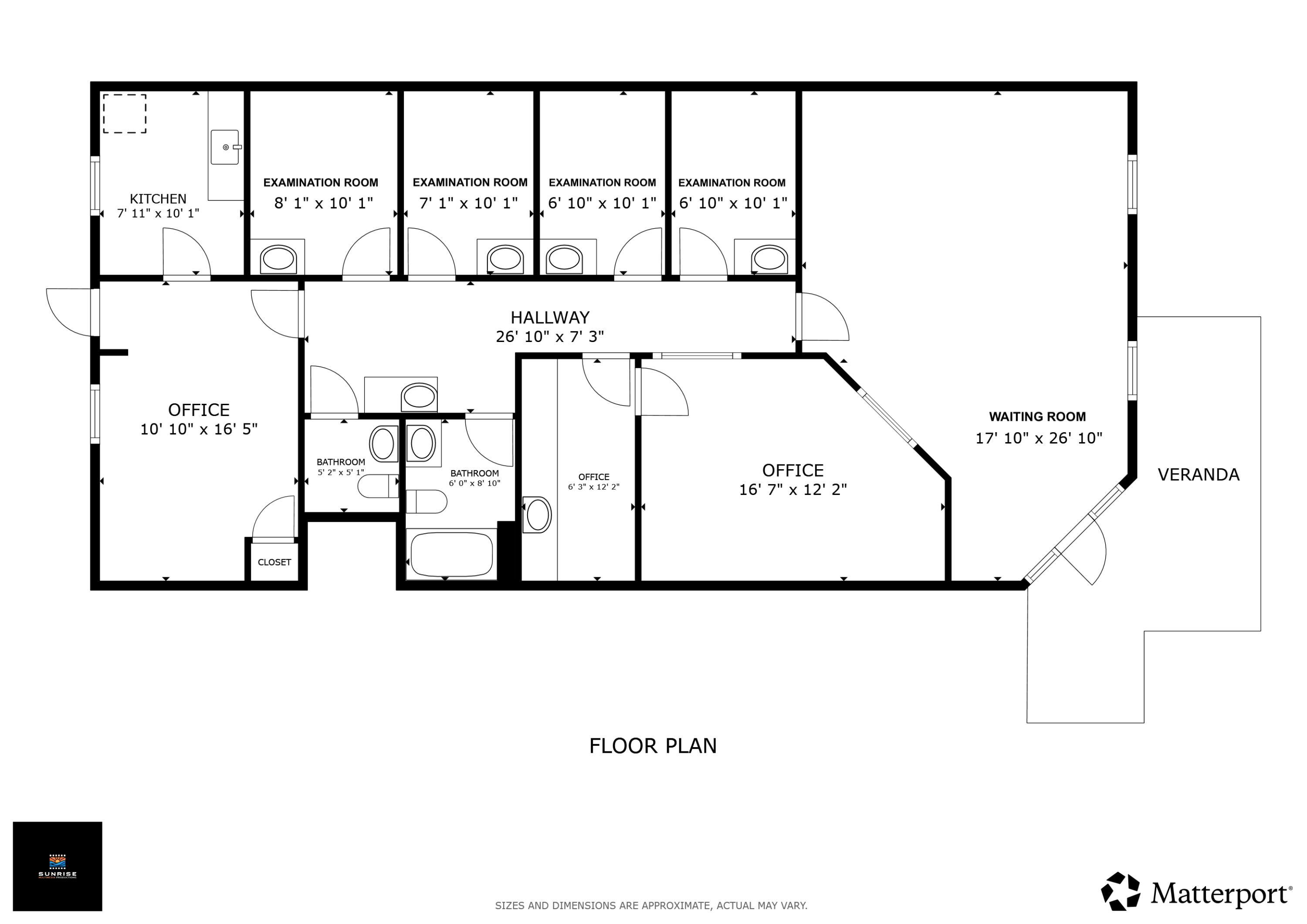
Pediatric Office for Sale - Across from HCA Florida Lawnwood HospitalPrime opportunity to own a 1,734 sq. ft. medical office in Fort Pierce's Treasure Coast healthcare corridor. Located directly across from HCA Florida Lawnwood Hospital--home to a Heart Institute, Level II Trauma Center, Stroke Center, Level III NICU, pediatric ER, and 24/7 emergency care--this office offers unmatched convenience and referral potential.Features:4 exam roomsLarge waiting & receptionist area2-3 private offices (flexible layout)Lab/procedure prep areaKitchen/break area & 2 bathroomsAmple on-site parkingClose to Indian River State College, offering Healthcare Management degrees--ideal for access to a skilled workforce and educational partnerships. A turnkey opportunity for ped pediatricians or healthcare specialists in a thriving medical hub. Possible lease opportunity.

View Virtual Tour

Essential Information

  • MLS® #RX-11125220
  • Price$500,000
  • Acres0.00
  • Year Built1988
  • TypeCommercial
  • Sub-TypeOther, Professional Office
  • StatusActive

Style

Condo, Medical, Office/Professional, Special Purpose

Community Information

  • Address1801 S 23rd St #3
  • Area7080
  • CityFort Pierce
  • CountySt. Lucie
  • StateFL
  • Zip Code34950

Interior

  • AppliancesFurniture
  • HeatingCentral, Electric
  • CoolingCentral, Electric
  • # of Stories1

Exterior

  • Lot DescriptionMEDICAL OFFICE
  • RoofOther
  • ConstructionConcrete

Additional Information

  • Date ListedSeptember 18th, 2025
  • Days on Website147
  • Zoning1904 - MED COND
  • Office: One Sotheby's Int'l Realty

Property Location

Please provide a valid email address.

1801 S 23rd St #3 on www.webmail.jupiterabacoahomes.us

Offered at the current list price of $500,000, this home for sale at 1801 S 23rd St #3 features bedrooms and 0 bathrooms. This real estate listing is located in of Fort Pierce, FL 34950 . 1801 S 23rd St #3 is listed under the MLS ID of RX-11125220 and has been available through www.webmail.jupiterabacoahomes.us for the Fort Pierce real estate market for 147 days.

Similar Listings to 1801 S 23rd St #3

Photo of Listing #RX-11158429
  • MLS® #: RX-11158429
  • 602 W Midway Road
  • Fort Pierce, FL 34982
  • $559,000
  • 1,884 SqFt, 0.25 Acres
  • Commercial
Add as Favorite
Photo of Listing #RX-11144125
  • MLS® #: RX-11144125
  • 1826 Orange Av
  • Fort Pierce, FL 34950
  • $599,000
  • 1,161 SqFt, 0.34 Acres
  • Commercial
Add as Favorite

All listings featuring the BMLS logo are provided by Beaches MLS Inc. Copyright 2026 Beaches MLS. This information is not verified for authenticity or accuracy and is not guaranteed.
© 2026 Beaches Multiple Listing Service, Inc. All rights reserved.

Listing information last updated on February 13th, 2026 at 1:30am CST.