1. Home
  2. Search Listings
  3. 872 Sw 30th St Palm City, FL - 34990
REDUCED
  • MLS® #: RX-11128111
  • 872 Sw 30th St
  • Palm City, FL 34990
  • $400,000
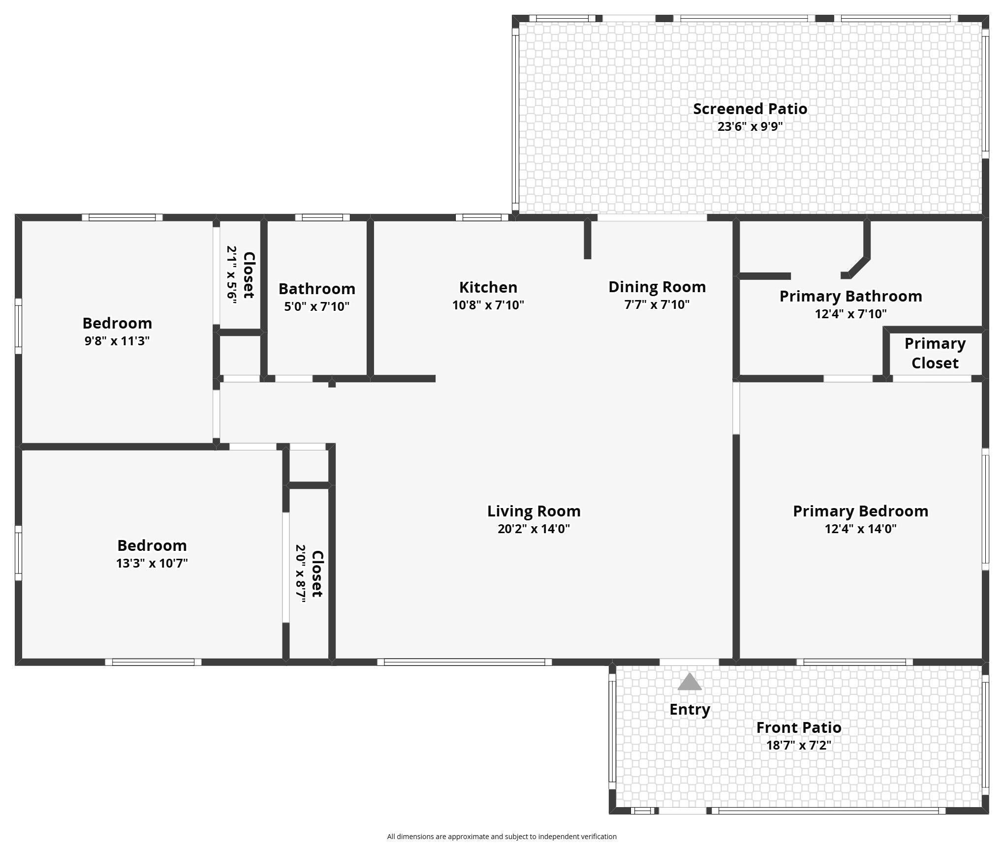
  • 3 Beds, 2 Bath, 1,224 SqFt
  • Residential

This charming residence combines comfort, convenience, and efficiency in a desirable location. You'll be close to Charlie Leighton Park, less than a mile away, with easy access to the St. Lucie River. The park has a boat launch. Set on a spacious .326-acre lot, this property offers plenty of room for all your toys. The large backyard provides possibilities for entertaining, gardening, or relaxing in your own private space. Inside, you'll find an open-concept layout enhanced with crown molding, a modern kitchen with stainless steel appliances, and comfortable living areas filled with natural light. The home features 3 bedrooms and 2 full baths.Best of all, the home is equipped with solar panels, keeping the seller's power bill below $25, a tremendous saving on energy costs! With no HOA restrictions, unbeatable energy efficiency, and a location close to recreation and the water, this home is a rare find that won't last long.

View Virtual Tour

Essential Information

  • MLS® #RX-11128111
  • Price$400,000
  • Bedrooms3
  • Bathrooms2.00
  • Full Baths2
  • Square Footage1,224
  • Year Built1974
  • TypeResidential
  • Sub-TypeSingle Family Detached
  • StyleRanch
  • StatusPrice Change

Community Information

  • Address872 Sw 30th St
  • Area9 - Palm City
  • SubdivisionPALM CITY AMENDED
  • CityPalm City
  • CountyMartin
  • StateFL
  • Zip Code34990

Amenities

  • AmenitiesNone
  • UtilitiesSeptic, Well Water
  • ParkingRV/Boat, Open
  • ViewGarden
  • WaterfrontNone

Interior

  • HeatingCentral, Electric
  • CoolingCeiling Fan, Central, Electric
  • # of Stories1
  • Stories1.00

Interior Features

Entry Lvl Lvng Area, Split Bedroom

Appliances

Dishwasher, Microwave, Range - Electric, Refrigerator, Water Heater - Elec

Exterior

  • WindowsBlinds
  • RoofMetal
  • ConstructionBlock, CBS

Exterior Features

Screen Porch, Screened Patio, Shed, Solar Panels

Lot Description

1/2 to < 1 Acre, Interior Lot, Paved Road, Public Road, West of US-1

School Information

  • ElementaryPalm City Elementary School
  • MiddleHidden Oaks Middle School
  • HighMartin County High School

Additional Information

  • Date ListedSeptember 30th, 2025
  • Days on Website28
  • ZoningResidential
  • Office: The Keyes Company - Hobe Sound

Property Location

Please provide a valid email address.

872 Sw 30th St on www.webmail.jupiterabacoahomes.us

Offered at the current list price of $400,000, this home for sale at 872 Sw 30th St features 3 bedrooms and 2 bathrooms. This real estate listing is located in PALM CITY AMENDED of Palm City, FL 34990 and is approximately 1,224 square feet. 872 Sw 30th St is listed under the MLS ID of RX-11128111 and has been available through www.webmail.jupiterabacoahomes.us for the Palm City real estate market for 28 days.

Similar Listings to 872 Sw 30th St

Photo of Listing #RX-11130817
  • MLS® #: RX-11130817
  • 976 Sw 34th Ter
  • Palm City, FL 34990
  • $395,888
  • 3 Bed, 2 Bath, 1,363 SqFt
  • Residential
Add as Favorite
Photo of Listing #RX-11064589
  • MLS® #: RX-11064589
  • 3764 Sw Pheasant Run
  • Palm City, FL 34990
  • $425,000
  • 3 Bed, 2 Bath, 1,686 SqFt
  • Residential
Add as Favorite
Photo of Listing #RX-11077537
  • MLS® #: RX-11077537
  • 3634 Sw Pheasant Run
  • Palm City, FL 34990
  • $389,000
  • 3 Bed, 2 Bath, 1,546 SqFt
  • Residential
Add as Favorite
Photo of Listing #RX-11104427
  • MLS® #: RX-11104427
  • 2705 Sw Egret Pond Cir
  • Palm City, FL 34990
  • $385,000
  • 3 Bed, 2 Bath, 1,442 SqFt
  • Residential
Add as Favorite

All listings featuring the BMLS logo are provided by Beaches MLS Inc. Copyright 2025 Beaches MLS. This information is not verified for authenticity or accuracy and is not guaranteed.
© 2025 Beaches Multiple Listing Service, Inc. All rights reserved.

Listing information last updated on October 28th, 2025 at 2:31pm CDT.