1. Home
  2. Search Listings
  3. 5503 N Flagler Dr West Palm Beach, FL - 33407
NEW
  • MLS® #: RX-11164076
  • 5503 N Flagler Dr
  • West Palm Beach, FL 33407
  • $1,800,000
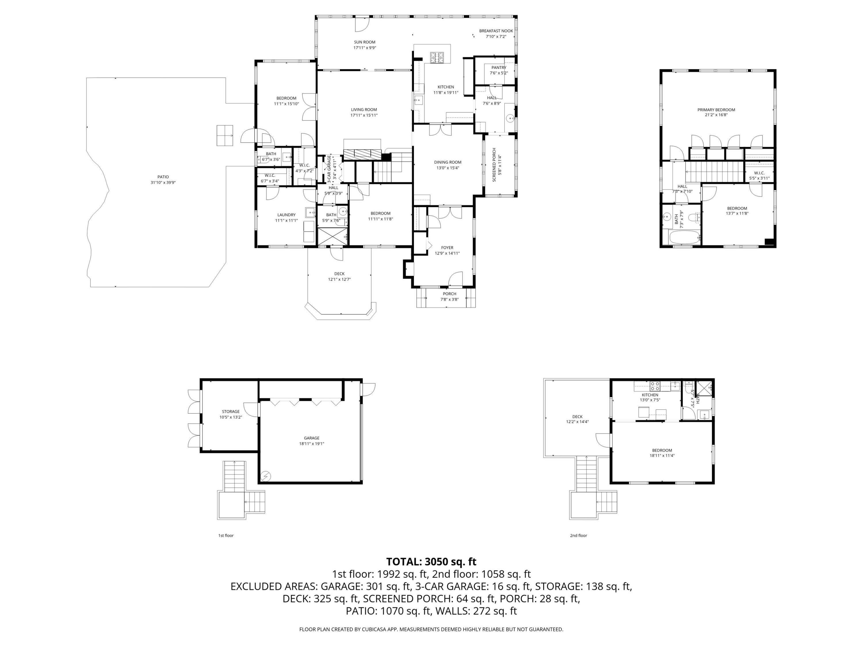
  • 5 Beds, 4 Bath, 3,365 SqFt
  • Residential

Welcome to 5503 North Flagler Dr. A beautifully restored Florida plantation-style home on a large 15,800 sq. ft. lot across from the intracoastal, in the Northwood Harbor Marina District.The home has the original Dade County Pine flooring, fireplace, and many historic features throughout. The updated kitchen opens to the original wrap-around porch that was enclosed as a family room, with views of the lush landscaping. 4 bedrooms, and 2.5 baths, with 2 bedrooms on the first floor. The 1 bedroom guest house, is above the detached 2 car garage, w/worksop, and gated driveway entry. The home has the original ''pebble-dash'' stucco finish from 1920, making this one of the most historically significant homes in the neighborhood. The large lot allows choices for the pool placement.

Essential Information

  • MLS® #RX-11164076
  • Price$1,800,000
  • Bedrooms5
  • Bathrooms4.00
  • Full Baths3
  • Half Baths1
  • Square Footage3,365
  • Year Built1920
  • TypeResidential
  • Sub-TypeSingle Family Detached
  • StyleTraditional
  • StatusComing Soon

Community Information

  • Address5503 N Flagler Dr
  • Area5420
  • CityWest Palm Beach
  • CountyPalm Beach
  • StateFL
  • Zip Code33407

Subdivision

NORTHWOOD HARBOR HIST. DISTRICT

Amenities

  • # of Garages2
  • ViewGarden
  • WaterfrontNone

Amenities

Bike - Jog, Dog Park, Park, Sidewalks, Street Lights

Utilities

Cable, 3-Phase Electric, Gas Natural, Public Sewer, Public Water

Parking

2+ Spaces, Driveway, RV/Boat, Garage - Detached, Open

Interior

  • HeatingCentral
  • CoolingCentral
  • FireplaceYes
  • # of Stories2
  • Stories2.00

Interior Features

Fireplace(s), Foyer, French Door, Pantry, Split Bedroom

Appliances

Dishwasher, Disposal, Dryer, Ice Maker, Range - Gas, Refrigerator, Smoke Detector, Washer, Water Heater - Gas

Exterior

  • Lot Description1/4 to 1/2 Acre, Corner Lot
  • WindowsSingle Hung Wood
  • RoofComp Shingle, Other
  • ConstructionFrame, Woodside

Exterior Features

Auto Sprinkler, Extra Building, Fence, Open Patio, Room for Pool, Summer Kitchen

Additional Information

  • Date ListedFebruary 16th, 2026
  • ZoningSF7(ci
  • Office: The Corcoran Group

Property Location

Please provide a valid email address.

5503 N Flagler Dr on www.webmail.jupiterabacoahomes.us

Offered at the current list price of $1,800,000, this home for sale at 5503 N Flagler Dr features 5 bedrooms and 4 bathrooms. This real estate listing is located in NORTHWOOD HARBOR HIST. DISTRICT of West Palm Beach, FL 33407 and is approximately 3,365 square feet. 5503 N Flagler Dr is listed under the MLS ID of RX-11164076 and has been available through www.webmail.jupiterabacoahomes.us for the West Palm Beach real estate market for 0 days.

Facts About West Palm Beach, FL

Raymond F. Kravis Center for the Performing Arts is the culture icon for the West Palm Beach Area. This 2000 plus seat venue hosts a treasure of Dance, Music and Dramatic performances each year.

If you are looking for some vibrant nightlife in West Palm Beach then visit Dr. Feelgood's Rock Bar and Grill. This colorful nightclub was created by Motley Crue’s front man Vince Neil and is a exciting venue for those looking for some great West Palm Beach nightlife.

Looking for great shopping and entertainment in West Palm Beach Florida? Look no further than Clematis Street. It is home to some of West Palm Beach's most vibrant and entertaining shops, restaurants and nightclubs.

Similar Listings to 5503 N Flagler Dr

Photo of Listing #RX-11138820
  • MLS® #: RX-11138820
  • 219 33rd St
  • West Palm Beach, FL 33407
  • $1,799,000
  • 4 Bed, 4 Bath, 2,289 SqFt
  • Residential
Add as Favorite
Photo of Listing #RX-11142364
  • MLS® #: RX-11142364
  • 1538 39th St
  • West Palm Beach, FL 33407
  • $1,750,000
  • 6 Bed, 5 Bath, 3,611 SqFt
  • Residential
Add as Favorite
Photo of Listing #RX-11038409
  • MLS® #: RX-11038409
  • 240 Almeria Rd
  • West Palm Beach, FL 33405
  • $1,999,000
  • 3 Bed, 3 Bath, 1,092 SqFt
  • Residential
Add as Favorite
Photo of Listing #RX-11073981
  • MLS® #: RX-11073981
  • 8988 Lakes Blvd
  • West Palm Beach, FL 33412
  • $1,999,000
  • 4 Bed, 4 Bath, 3,254 SqFt
  • Residential
Add as Favorite

All listings featuring the BMLS logo are provided by Beaches MLS Inc. Copyright 2026 Beaches MLS. This information is not verified for authenticity or accuracy and is not guaranteed.
© 2026 Beaches Multiple Listing Service, Inc. All rights reserved.

Listing information last updated on February 16th, 2026 at 11:30pm CST.